Réf : 28 MD
Prochainement disponible

Brécey (50370) Maison 5 pièces - 121 m²

5 Pièce(s)
4 Chambre(s)
1 Salle(s) de bain

Les infos Essentielles

Caractéristiques Valeurs
Code postal 50370
Surface habitable (m²) 121,50 m²
surface terrain 236 m²
Surface loi Boutin (m²) 121,50 m²
Caractéristiques Valeurs
Nombre de chambre(s) 4
Nombre de pièces 5
Meublé NON
Nombre de niveaux 2
Caractéristiques Valeurs
Nb de salle de bains 1
Nb de salle d'eau 1
Cuisine Séparée
Mode de chauffage Pompe à chaleur
Caractéristiques Valeurs
Type de chauffage Radiateur
Format de chauffage Individuel
Nombre de garage 1
Nombre de parking 2
Caractéristiques Valeurs
Copropriété NON

LOSLIER IMMOBILIER, Moins d'Honoraires, Plus de Services.

Nous vous proposons à la location cette charmante maison de bourg, idéalement située en centre-ville de Brécey. Elle se compose :

- Au rez-de-chaussée : d'une entrée desservant un séjour, une cuisine, une chambre et une salle d'eau avec WC,

- À l'étage : un palier avec placards desservant 3 grandes chambres lumineuses, une salle de bain et un WC séparé.

À l'extérieur, cour et garage de 50 m², terrasse à l'arrière.

Assainissement tout-à-l'égout, chauffage par pompe à chaleur, fenêtres PVC double vitrage, raccordé à la fibre optique.

Disponible à partir de début février 2026.

Les informations sur les risques auxquels ce bien est exposé sont disponibles sur le site géorisques : www.georisques.gouv.fr. 

Les infos Financières

Loyer CC* / mois 800 €
Honoraires TTC charge locataire 770 €
Dont état des lieux 364 €
Dépôt de garantie TTC 770 €
Charges locatives (Previsionnelles mensuelles les avec regularisation annuelle) 30 €

Nos outils

Imprimer

* CC : Charges comprises

Localisation Du bien

  • Commerces et santé
  • Loisirs
  • Ecoles
  • Transports
  • Pratique

Les infos Energetiques

DPE GES

Montant estimé des dépenses annuelles d'énergie pour un usage standard est compris entre 1 710 € et 2 350 € . Prix moyens des énergies indexés sur les années 2021, 2022 et 2023 (abonnements compris).

Rez de chaussée
entrée 7.95 m²

chambre 13.35 m²

cuisine 10.25 m²

salle d'eau 5.05 m²

salon/sejour 21.55 m²

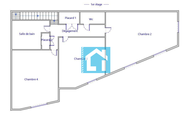
Etage 1
dégagement/couloir 5.5 m²

chambre 17.65 m²

chambre 15.85 m²

chambre 15.55 m²

salle de bain 5.4 m²

WC 1.35 m²

Intéressé(e) par Ce bien ?

* Champ obligatoire

Les informations recueillies sur ce formulaire sont enregistrées dans un fichier informatisé par La Boite Immo agissant comme Sous-traitant du traitement pour la gestion de la clientèle/prospects de l'Agence / du Réseau qui reste Responsable du Traitement de vos Données personnelles. La base légale du traitement repose sur l'intérêt légitime de l'Agence / du Réseau. Elles sont conservées jusqu'à demande de suppression et sont destinées à l'Agence / au Réseau. Conformément à la loi « informatique et libertés », vous disposez des droits d’accès, de rectification, d’effacement, d’opposition, de limitation et de portabilité de vos données. Vous pouvez retirer votre consentement à tout moment en contactant directement l’Agence / Le Réseau. Consultez le site https://cnil.fr/fr pour plus d’informations sur vos droits. Si vous estimez, après avoir contacté l'Agence / le Réseau, que vos droits « Informatique et Libertés » ne sont pas respectés, vous pouvez adresser une réclamation à la CNIL. Nous vous informons de l’existence de la liste d'opposition au démarchage téléphonique « Bloctel », sur laquelle vous pouvez vous inscrire ici : https://www.bloctel.gouv.fr Dans le cadre de la protection des Données personnelles, nous vous invitons à ne pas inscrire de Données sensibles dans le champ de saisie libre.
Ce site est protégé par reCAPTCHA, les Politiques de Confidentialité et les Conditions d'Utilisation de Google s'appliquent.
contacter l'agence