Réf : 2946a_CL

La Lande-d'Airou (50800) Maison à finir + parcelle constructible

4 Pièce(s)
3 Chambre(s)

Les infos Essentielles

Caractéristiques Valeurs
Code postal 50800
Surface habitable (m²) 115 m²
surface terrain 7 899 m²
Nombre de chambre(s) 3
Caractéristiques Valeurs
Nombre de pièces 4
Nombre de niveaux 1
Vue Dégagée
Terrain constructible OUI
Caractéristiques Valeurs
Surface constructible 1800
Nb de salle d'eau 2
Nombre de garage 2
Exposition Sud
Caractéristiques Valeurs
Année de construction 2012
Terrain Viabilisé NON
Copropriété NON

Loslier Immobilier, Moins d'honoraires plus de services

Loslier Immobilier, Moins d'honoraires plus de services

Cindy LEVERD vous propose à La Lande d’Airou, à 5 minutes de Villedieu-les-Poêles et toutes ses commodités (écoles, collèges, commerces, cinéma, médecins, etc ...), 20 minutes d’Avranches et 30 minutes de Granville, à 2 pas de l’échangeur A84 et de la ligne de train Paris / Granville cette maison en cours de construction, avec possibilité de vie de plain-pied, sans vis-vis avec vue dégagée, dont les plans étaient définis ainsi :

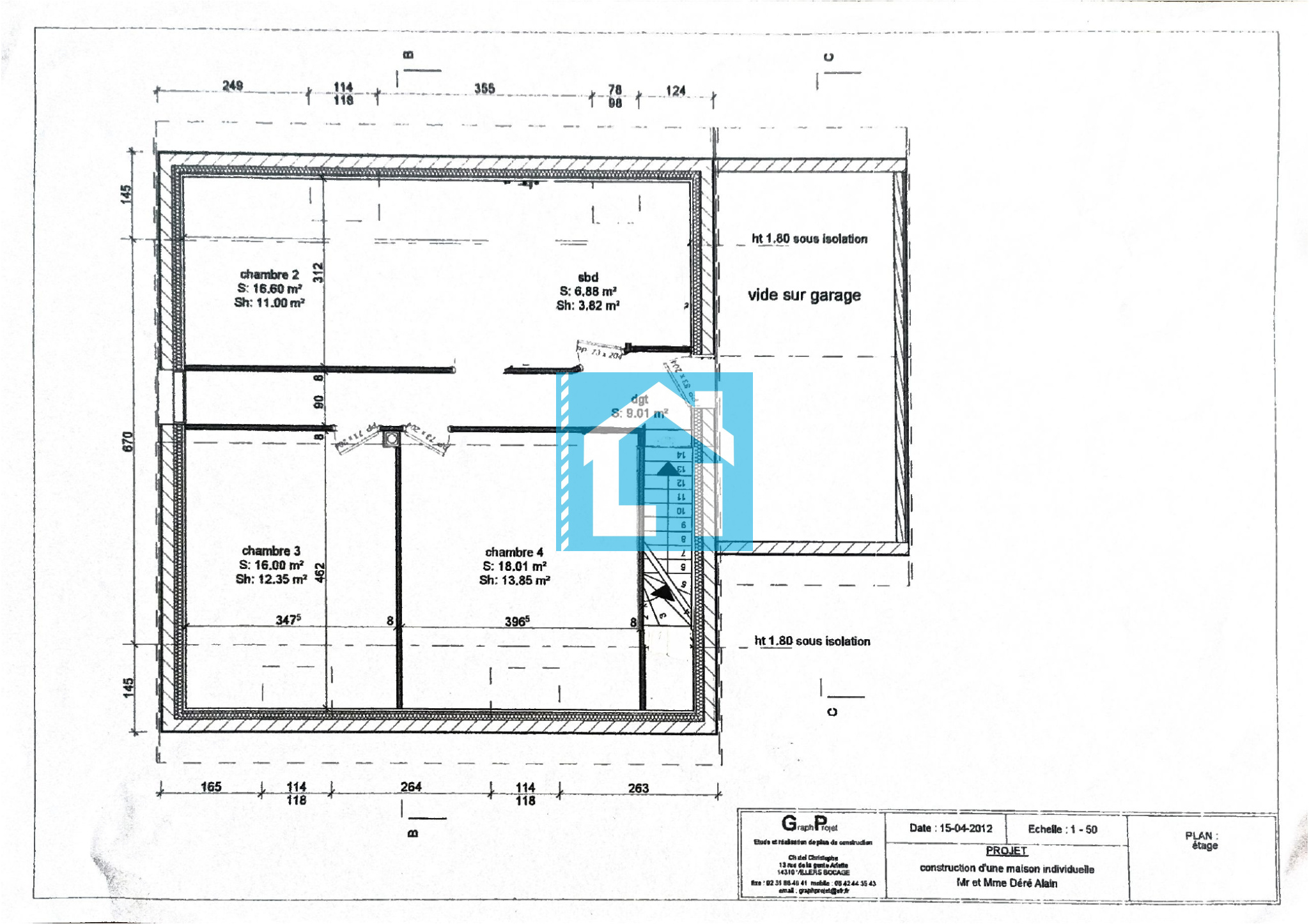
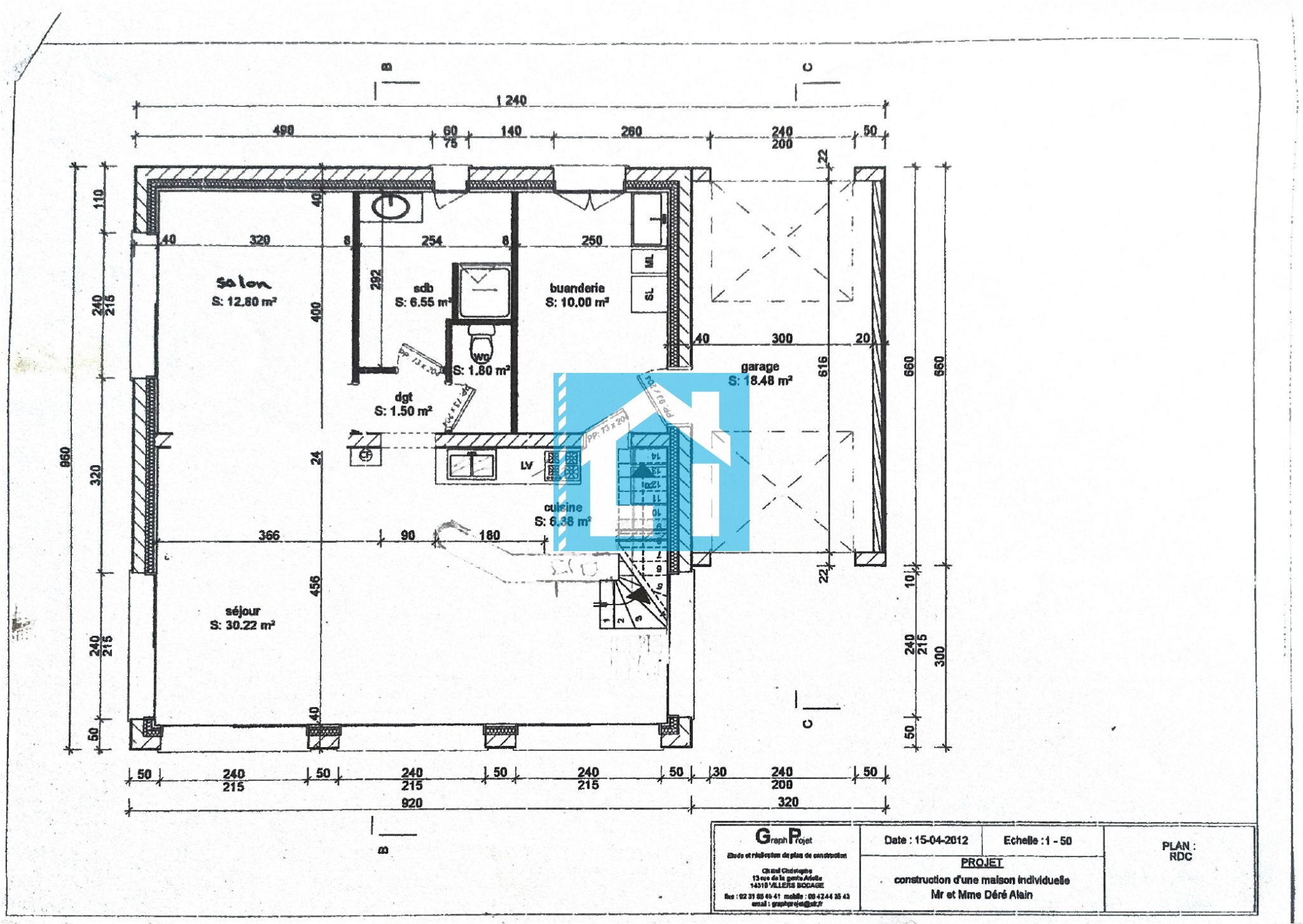
  • Au rdc : séjour avec cuisine ouverte, salon (ou chambre), salle d’eau, WC, buanderie
  • A l’étage : 3 chambres, salle de bain, wc
  • A l’extérieur : garage, grand terrain avec vue dégagée, parcelle constructible attenante.

N’hésitez pas à contactez votre conseillère en immobilier pour plus d’information au 07 50 40 75 73 ou sur cindy.leverd.li@gmail.com.

Les informations sur les risques auxquels ce bien est exposé sont disponibles sur le site Géorisques : www.georisques.gouv.fr

Les infos Financières

Prix de vente honoraires TTC inclus 69 500 €
Prix de vente honoraires TTC exclus 65 000 €
Honoraires TTC à la charge acquéreur 6,92 %

Nos outils

Imprimer

Localisation Du bien

  • Commerces et santé
  • Loisirs
  • Ecoles
  • Transports
  • Pratique

Les infos Energetiques

DPE GES
DPE non concerné
Intéressé(e) par Ce bien ?

* Champ obligatoire

Les informations recueillies sur ce formulaire sont enregistrées dans un fichier informatisé par La Boite Immo agissant comme Sous-traitant du traitement pour la gestion de la clientèle/prospects de l'Agence / du Réseau qui reste Responsable du Traitement de vos Données personnelles. La base légale du traitement repose sur l'intérêt légitime de l'Agence / du Réseau. Elles sont conservées jusqu'à demande de suppression et sont destinées à l'Agence / au Réseau. Conformément à la loi « informatique et libertés », vous disposez des droits d’accès, de rectification, d’effacement, d’opposition, de limitation et de portabilité de vos données. Vous pouvez retirer votre consentement à tout moment en contactant directement l’Agence / Le Réseau. Consultez le site https://cnil.fr/fr pour plus d’informations sur vos droits. Si vous estimez, après avoir contacté l'Agence / le Réseau, que vos droits « Informatique et Libertés » ne sont pas respectés, vous pouvez adresser une réclamation à la CNIL. Nous vous informons de l’existence de la liste d'opposition au démarchage téléphonique « Bloctel », sur laquelle vous pouvez vous inscrire ici : https://www.bloctel.gouv.fr Dans le cadre de la protection des Données personnelles, nous vous invitons à ne pas inscrire de Données sensibles dans le champ de saisie libre.
Ce site est protégé par reCAPTCHA, les Politiques de Confidentialité et les Conditions d'Utilisation de Google s'appliquent.
contacter l'agence
Ces biens peuvent aussi vous intéresser
Exclusif
Romagny (50140)

Maison 2 chambres avec grenier aménageable à finir de rénover

Cuves (50670)

Maison à rénover, 3 chambres, possibilité d'agrandissement, dans le...