Réf : 3302_CL

Cuves (50670) Maison à rénover, 3 chambre, possibilité d'agrandissement, dans le bourg de Cuves

4 Pièce(s)
3 Chambre(s)

Les infos Essentielles

Caractéristiques Valeurs
Code postal 50670
Surface habitable (m²) 123 m²
surface terrain 700 m²
Nombre de chambre(s) 3
Caractéristiques Valeurs
Nombre de pièces 4
Nombre de niveaux 1
Nb de salle d'eau 1
Mode de chauffage Fioul, Bois
Caractéristiques Valeurs
Type de chauffage TRAD_TYPE_CHAUFF_CHAUDIERE, Cheminée
Format de chauffage Individuel, Individuel
Murs mitoyens 2
Année de construction 1900
Caractéristiques Valeurs
Copropriété NON

Loslier Immobilier, Moins d'honoraires, Plus de services

Cindy LEVERD vous propose à la vente cette maison de bourg  à rénover, située à Cuves, soit à 5 km de Brécey, 15 km de Sourdeval et 20 km de Villedieu-les-Poêles, Avranches et Mortain. Elle est composée : 

  • Au RDC : pièce de vie avec cuisine, buanderie, chambre, salle d'eau, WC, Cave

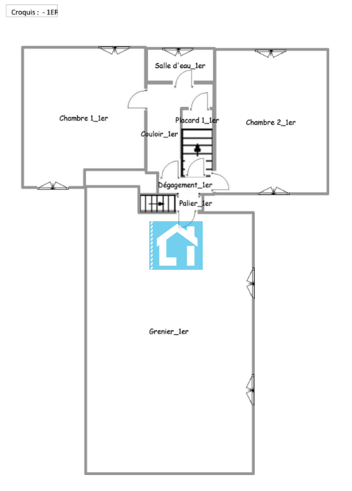
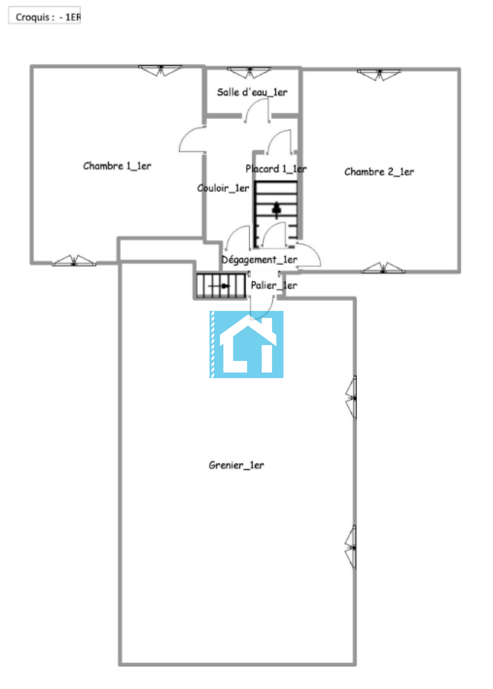
  • Au 1er étage : 2 chambres, salle d'eau, grenier aménageable

  • Au 2nd étage : grenier  aménageable

  • En extérieur : terrain arboré

Assainissement tout à l'égout

N’hésitez pas à contacter votre conseillère en immobilier pour plus d’information au 07 50 40 75 73 ou sur cindy.leverd.li@gmail.com.

Les informations sur les risques auxquels ce bien est exposé sont disponibles sur le site Géorisques : www.georisques.gouv.fr


Les informations sur les risques auxquels ce bien est exposé sont disponibles sur le site Géorisques

Les infos Financières

Prix de vente honoraires TTC inclus 59 500 €
Prix de vente honoraires TTC exclus 55 000 €
Honoraires TTC à la charge acquéreur 8,18 %
Taxe foncière annuelle 561 €

Nos outils

Imprimer

Localisation Du bien

  • Commerces et santé
  • Loisirs
  • Ecoles
  • Transports
  • Pratique

Les infos Energetiques

DPE GES

Logement à consommation énergétique excessive : classe F

Montant estimé des dépenses annuelles d'énergie de ce logement pour un usage standard est compris entre 2 880 € et 3 960 € . 2021 étant l'année de référence des prix de l'énergie utilisés pour établir cette estimation.

Intéressé(e) par Ce bien ?

* Champ obligatoire

Les informations recueillies sur ce formulaire sont enregistrées dans un fichier informatisé par La Boite Immo agissant comme Sous-traitant du traitement pour la gestion de la clientèle/prospects de l'Agence / du Réseau qui reste Responsable du Traitement de vos Données personnelles. La base légale du traitement repose sur l'intérêt légitime de l'Agence / du Réseau. Elles sont conservées jusqu'à demande de suppression et sont destinées à l'Agence / au Réseau. Conformément à la loi « informatique et libertés », vous disposez des droits d’accès, de rectification, d’effacement, d’opposition, de limitation et de portabilité de vos données. Vous pouvez retirer votre consentement à tout moment en contactant directement l’Agence / Le Réseau. Consultez le site https://cnil.fr/fr pour plus d’informations sur vos droits. Si vous estimez, après avoir contacté l'Agence / le Réseau, que vos droits « Informatique et Libertés » ne sont pas respectés, vous pouvez adresser une réclamation à la CNIL. Nous vous informons de l’existence de la liste d'opposition au démarchage téléphonique « Bloctel », sur laquelle vous pouvez vous inscrire ici : https://www.bloctel.gouv.fr Dans le cadre de la protection des Données personnelles, nous vous invitons à ne pas inscrire de Données sensibles dans le champ de saisie libre.
Ce site est protégé par reCAPTCHA, les Politiques de Confidentialité et les Conditions d'Utilisation de Google s'appliquent.
contacter l'agence
Ces biens peuvent aussi vous intéresser